ID : 1113
Installation Guide for Upright Setting of RC8 Controller (Safety-I/O-Less)
Following points are different from the standard model.
Items Prepared by Customers
| Type | A | B |
|---|---|---|
| placement direction |
When the wall locates bottom side of the controller.
|
When the wall locates upper side of the controller.
|
| Angle | Fixing angle for upright setting A (PDF:25KB) | Fixing angle for upright setting B (PDF:30KB) |
| Stand | Fixing stand for upright setting (PDF:27KB) | |
| Fixing bolt for facilities | M6 x 9 bolts (common for both types) | |
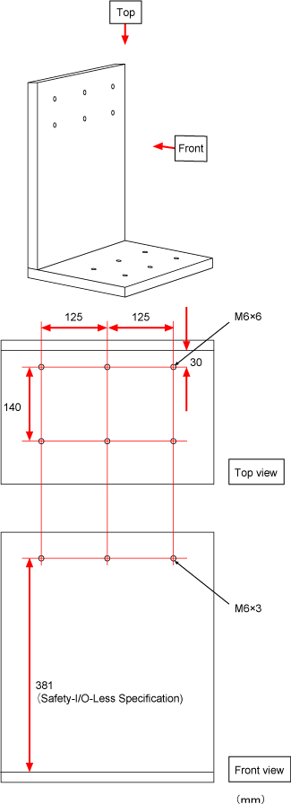
Dimensional Drawing for Fixing to the Wall and Floor

Setting Procedure
1
There are two types of screws, large and small, on each side panels.
Please remove large screws which are circled on the below image.

2
For processes STEP2 or later, please refer to "Standard model".
ID : 1113



