ID : 2643
RC8A (Safety Motion / Safety Motion UL)
Definition of the specification of the robot controller described here is as shown below.
- Safety Motion specification: Code showing the compliant standards of the controller type is "NM".
- Safety Motion UL specification: Code showing the compliant standards of the controller type is "UM".
For details of the code, refer to the category “G” written in "Controller Type" of "RC8 Series Robot Controller Manual".
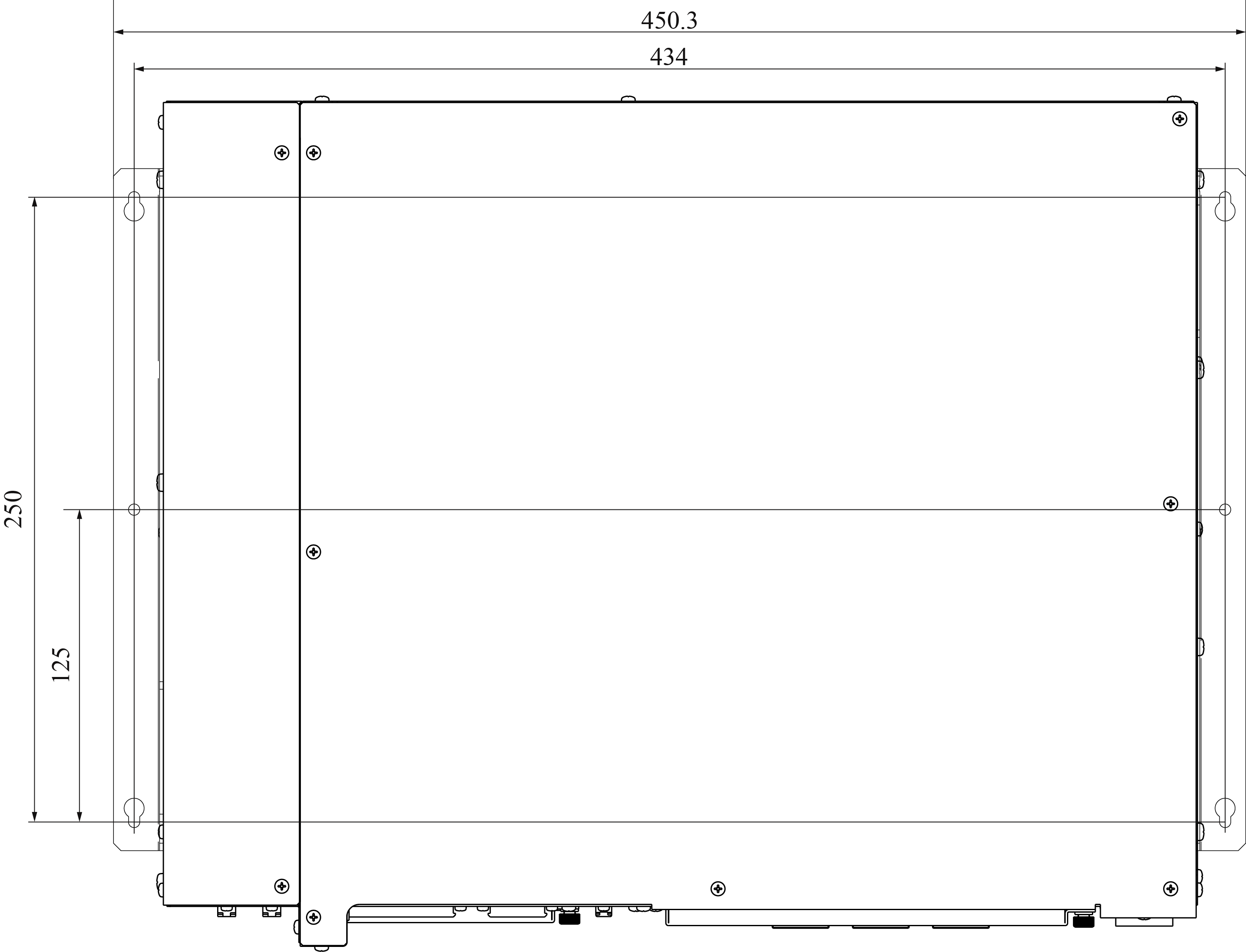
Outer Dimensions
The outer dimensions of the robot controller are shown below.
Safety Motion Specification

Safety Motion UL Specification

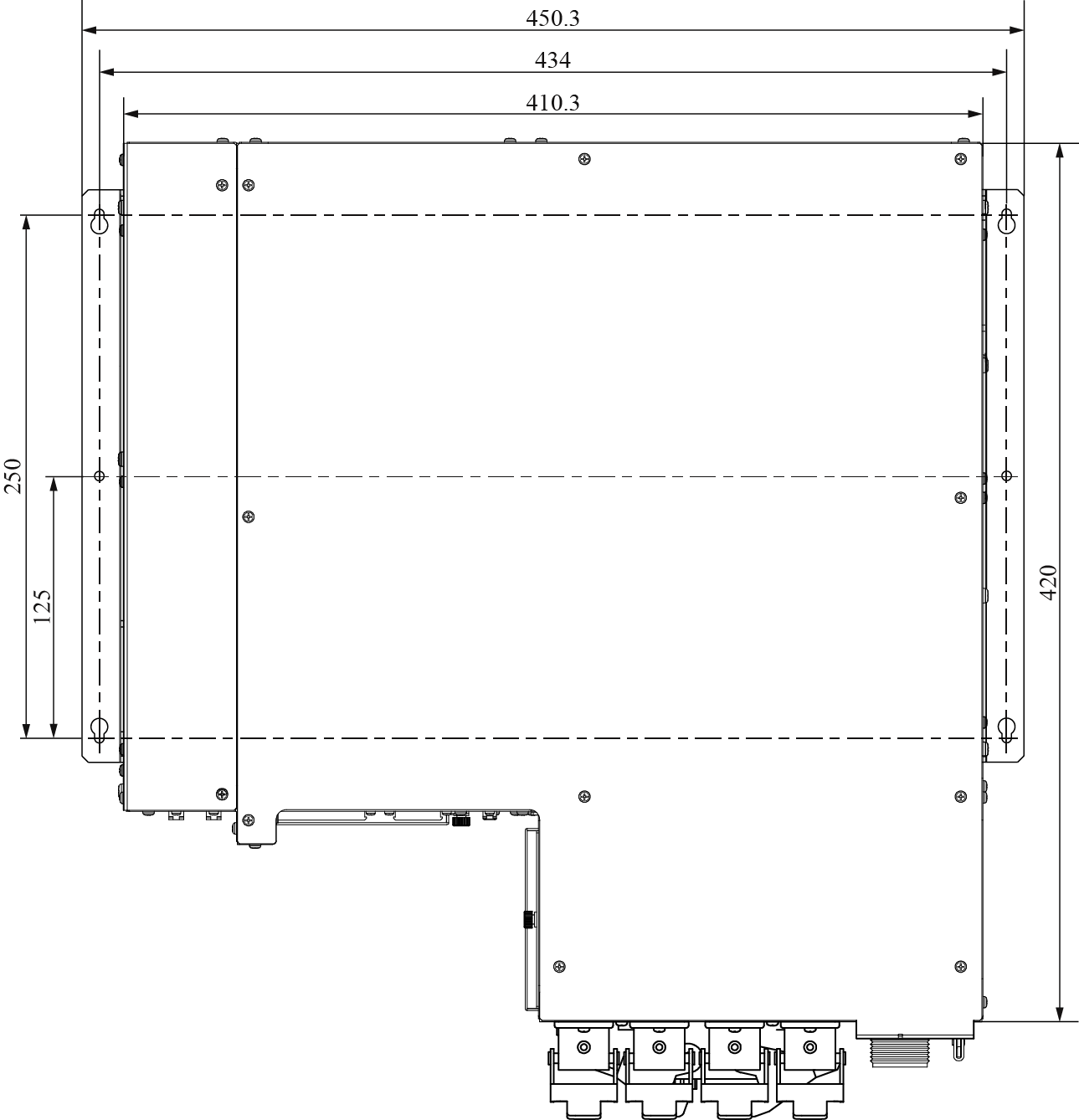
For Fixing by Stay
The method to install using dedicated stay is shown in the figure below.
Safety Motion Specification


Safety Motion UL Specification


ID : 2643

