ID : 1057
Component Names and Functions
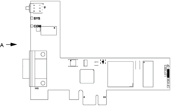
Component Names and Functions are shown below.
|
|
- The PROFIBUS interface has 9-pin D-Sub, female connector and the communication method is RS-485.
ID : 1057
- Related Information
- LED Display
ID : 1057
Component Names and Functions are shown below.
|
|
ID : 1057