<< Prev        Next >>

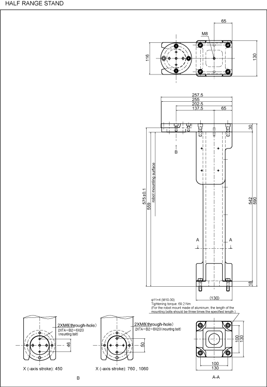
Option Stands /HALF RANGE STAND

Please refer to this if the figure is not clear.(PDF:240KB

Workable Space of the Robot Eith the Half-range Type Stand

Please refer to this if the figure is not clear.(PDF:719KB

 

<< Prev        Next >>