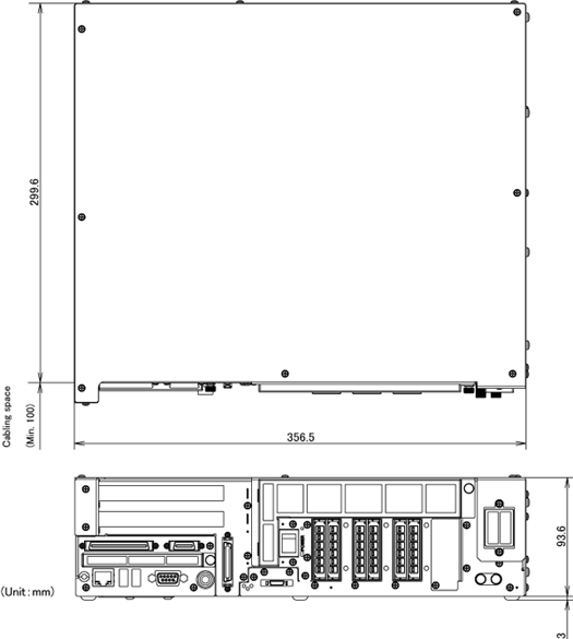
Outer Dimensions (Safety-I/O-Less)
The outer dimensions of the safety-I/O-less robot controller are shown below.

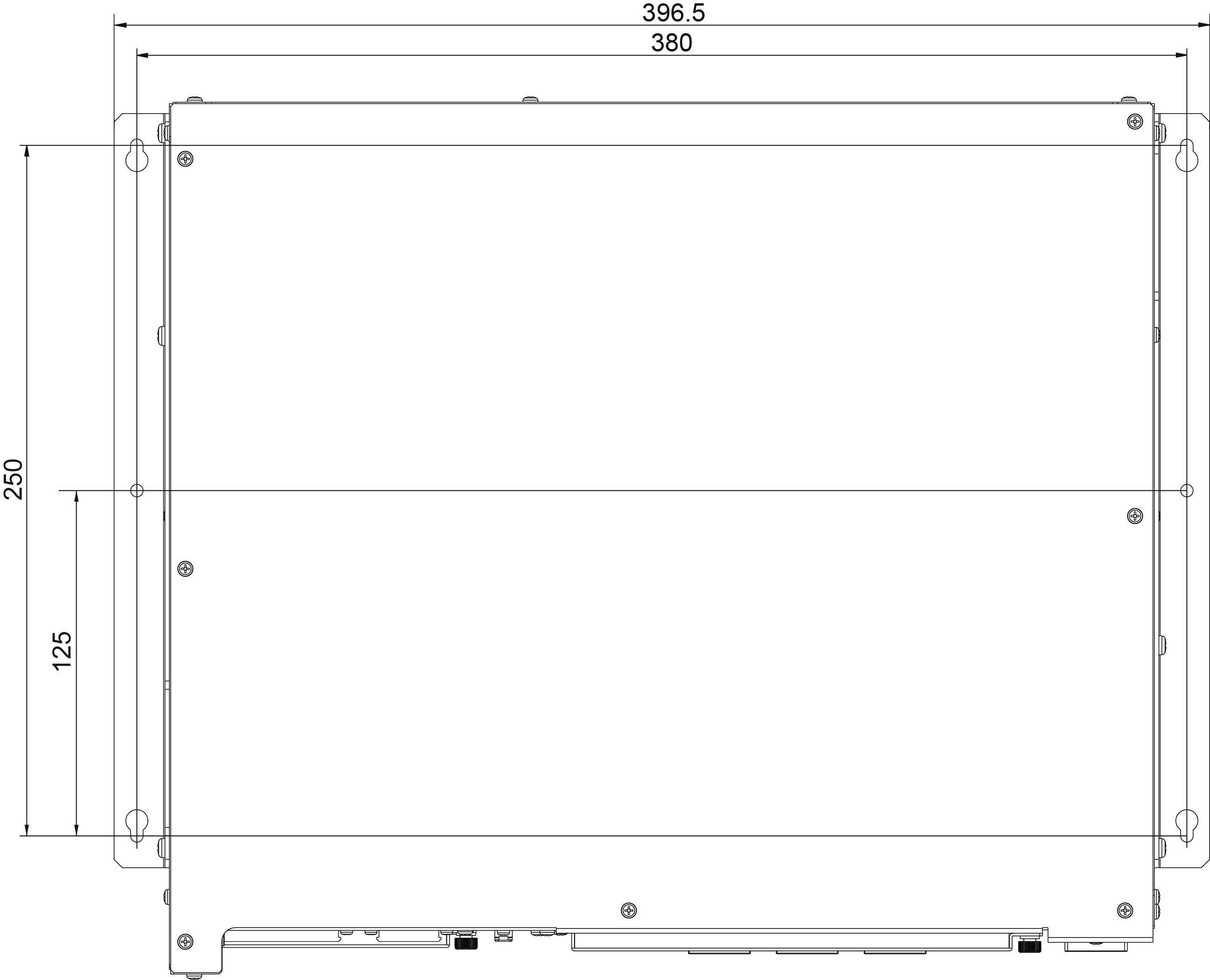
For Fixing by Stay
The method to install using dedicated stay is shown in the figure below.


The outer dimensions of the safety-I/O-less robot controller are shown below.

The method to install using dedicated stay is shown in the figure below.

