Changing the Z-axis Stroke of 200mm Mechanical Ends
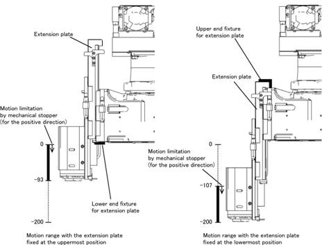
To change the motion range of the robot with the Z-axis stroke of 200 mm, fix the extension plate either at the uppermost or lowermost position.
For further settings in the positive direction, mount the mechanical stopper for positive direction. The mechanical
stopper is the same as that for robots with the Z-axis stroke of 135 mm.
- Drawings of the 3rd axis (Z-axis) Mechanical Stopper for Positive Direction (Z-axis stroke: 135 mm or 200 mm)
- Drawings of the Lower End Fixture for the Extension Plate (Z-axis stroke: 200 mm)
- Drawings of the Upper End Fixture for the Extension Plate (Z-axis stroke: 200 mm)

When changing the motion range of the robot with the Z-axis stroke of 200 mm, make sure that the extension plate is fixed.

