Component Names and Functions
Component Names and Functions are shown below.
|
|
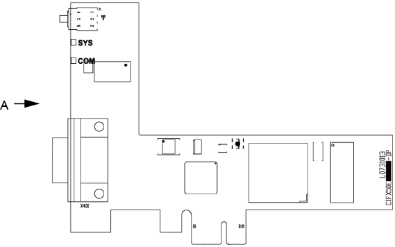
- The PROFIBUS interface has 9-pin D-Sub, female connector and the communication method is RS-485.
- Related Information
- LED Display
- Installation of PROFIBUS Slave Board
- Specifications



