ID : 10662
Preliminary Requirements for Floor Mounting
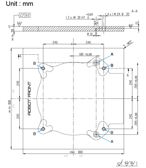
Prepare the robot fixing plate to install between the robot base and the concrete surface.
As an option, we provide the robot fixing plate for floor mounting.
Conditions of Robot Fixing Plate
If the robot fixing plate is prepared by customer, the robot fixing plate should meet the following conditions.
- Flatness of the robot fixing plate is 0.2 mm or less.
- Levelness of the robot fixing plate is ±0.5 mm/1000 or less.
- Steel materials are used.
- It has rigidity that can withstand "Maximum Reaction Force for Floor Mounting".
- Prepare holes for dowel pins and taps for robot fixing bolts which are necessary to fix the robot as shown in the figure below.

A: Holes for dowel pins
B: Holes for robot fixing bolts
Maximum Reaction Force Applied to Robot Installation Surface
The following shows the maximum reaction force generated on the robot installation surface when the robot moves.
Design/Install the mount and the robot fixing plate so that it can withstand the following maximum reaction force.
Maximum Reaction Force for Floor Mounting

| Motion Type | Fv (N) | Fo (N) | Mr (Nm) | Mk (Nm) |
|---|---|---|---|---|
| Accelerating | 9000 | 4000 | 4000 | 12000 |
| Emergency braking | 12000 | 8000 | 7000 | 22000 |
ID : 10662
- Related Information
- Level-adjustable Robot Fixing Plate
- Non Level-adjustable Robot Fixing Plate

